Active

Listing Tools

Listed by Cassie Neal of Silver Creek Real Estate Group,Inc.
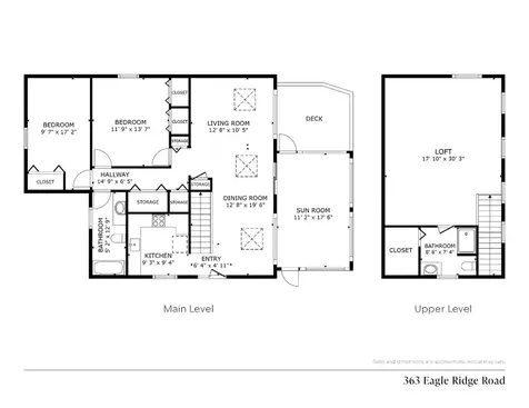
Discover a home in beautiful Sapphire, NC, with long-range mountain sunrise views, available for less than $1 million! This mountain chalet in the desirable Eagle Ridge community, in the heart of Sapphire Valley Resort, presents that rare opportunity. Experience glorious Carolina blue skies and sunrises that greet the morning, followed by moonrises and countless stars over the mountains at night, all from a serene retreat on a quiet cul-de-sac. Fall transforms the landscape with breathtaking colors, while deer and turkeys stroll through the backyard and hummingbirds visit the feeder, evoking a true mountain paradise. The main living area offers step-free access. Vaulted ceilings soar in the living and dining space, opening to an open deck, screened-in porch, and expansive mountain vistas. The kitchen, two bedrooms, and a bathroom reside conveniently on the main level. Upstairs, a spacious loft with transom windows, a full bathroom, and a walk-in closet adds over 500 square feet of versatile space - currently configured with a king-size bedroom set, TV entertainment area (including a sleeper sofa and big-screen TV), desk, and piano. Move-in ready, the home features extensive upgrades over the past 4-5 years, including dual-fuel gas/electric HVAC, a gas tankless water heater, a new gas fireplace with chimney, stainless steel kitchen appliances, updated plumbing fixtures, Pella windows and sliding glass door (partial replacement), a covered screened-in porch, a wood ramp to the front door, a walk-in crawl space for storage on the lower level, an exterior stone fire pit, and much more. As a bonus, the adjacent buildable lot ensures extra privacy and future expansion potential. Ownership includes access to Sapphire Valley Resort amenities, including heated pools, tennis courts, pickleball courts, a fitness center, a dog park, mini-golf facilities, a nine-hole golf course, and Fairfield Lake for swimming and boating. Winter fun abounds with skiing, snow tubing, and snowboarding. Escape scorching summers and urban hustle and bustle for a serene, nature-embraced lifestyle in the mountains.

Property Details of 363 Eagle Ridge Road

Interior Features

Exterior Features

Utilities and Appliances

Other Details

Map Location

 "Based on information submitted to HCBOR as of May 14, 2026 2:00 PM EDT. All data is deemed reliable but is not guaranteed accurate by the MLS. All information should be independently reviewed and verified for accuracy. IDX information is provided exclusively for consumers’ personal, noncommercial use and may not be used for any purpose other than to identify prospective properties consumers may be interested in purchasing."

Hi there! How can we help you?

Contact us using the form below or give us a call.

Send Us A Message:

I agree to receive marketing and customer service calls and text messages from Cashiers Valley Real Estate. To opt out, you can reply 'stop' at any time or click the unsubscribe link in the emails. Consent is not a condition of purchase. Msg/data rates may apply. Msg frequency varies. Privacy Policy.

Do not fill in this field:

This site is protected by reCAPTCHA and the Google Privacy Policy and Terms of Service apply.

Hi there! How can we help you?

Contact us using the form below or give us a call.

Send Us A Message:

Do not fill in this field:

This site is protected by reCAPTCHA and the Google Privacy Policy and Terms of Service apply.

Hi there! How can we help you?

Contact us using the form below or give us a call.

Send Us A Message:

Do not fill in this field:

This site is protected by reCAPTCHA and the Google Privacy Policy and Terms of Service apply.

Do not fill in this field:

This site is protected by reCAPTCHA and the Google Privacy Policy and Terms of Service apply.

Do not fill in this field:

This site is protected by reCAPTCHA and the Google Privacy Policy and Terms of Service apply.

Do not fill in this field:

This site is protected by reCAPTCHA and the Google Privacy Policy and Terms of Service apply.

$

Do not fill in this field:

This site is protected by reCAPTCHA and the Google Privacy Policy and Terms of Service apply.